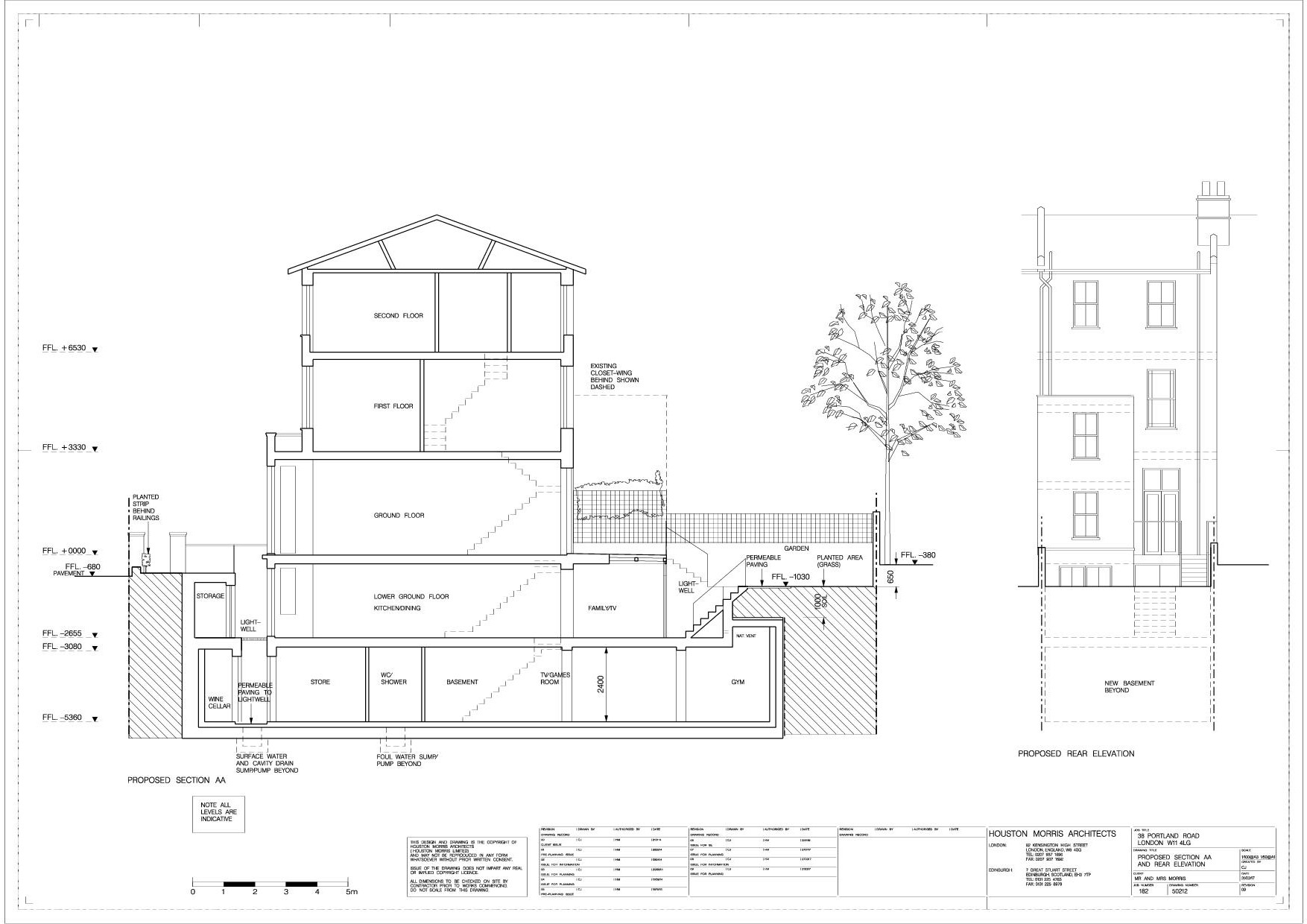
New basement, Holland Park

New basement, Holland Park

Planning permission has been obtained for a new basement to a Victorian terrace house in the Norland Conservation Area, Holland Park